
Los canalones de estructura de acero son un componente crucial del sistema de drenaje del techo de un edificio. Su función principal es recolectar el agua de lluvia del techo, dirigirla a tuberías verticales y luego descargarla al sistema de drenaje exterior, evitando que erosione directamente las paredes o empape los cimientos. El diseño y la instalación de los productos de Liweiyuan se caracterizan por su alta resistencia y peso ligero, lo que garantiza un drenaje suave y una durabilidad excepcional.
Los canalones de estructura de acero son un componente crucial del sistema de drenaje del techo de un edificio. Su función principal es recolectar el agua de lluvia del techo, dirigirla a tuberías verticales y luego descargarla al sistema de drenaje exterior, evitando que erosione directamente las paredes o empape los cimientos. El diseño y la instalación de los productos de Liweiyuan se caracterizan por su alta resistencia y peso ligero, lo que garantiza un drenaje suave y una durabilidad excepcional.
El canal de estructura de acero de Liweiyuan está hecho de materiales resistentes a la corrosión y a los impactos.
Nuestro producto está galvanizado en caliente, lo que ofrece una excelente resistencia a la corrosión, bajo costo y una larga vida útil. Disponible en espesores de 1,5 a 2,5 mm, es adecuado para la mayoría de aplicaciones.
Fabricado en acero inoxidable, este producto ofrece resistencia a la corrosión y es especialmente adecuado para ambientes costeros o húmedos. Disponible en espesores de 1,0-2,0 mm, ofrece un precio más elevado pero una larga vida útil.
Nuestros productos de acero con revestimiento de color se basan en acero galvanizado, recubierto con una capa resistente a la intemperie, como poliéster o fluorocarbono, tanto para resistencia a la corrosión como para efectos decorativos. Disponibles en espesores de 1,2-2,0 mm, son adecuados para edificios que requieren un alto nivel de atractivo estético.
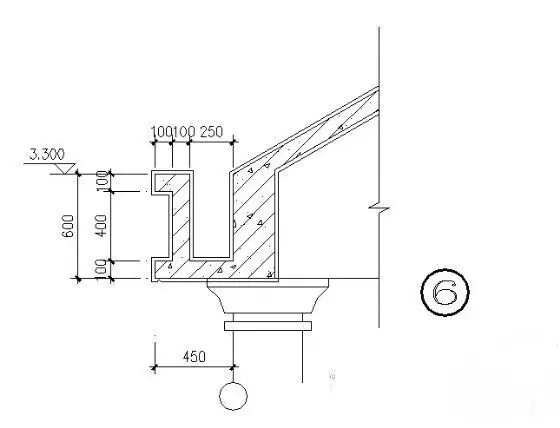
La forma estructural del canal con estructura de acero debe adaptarse a la pendiente del techo y al diseño del alero. Los tipos comunes incluyen en forma de U y en forma de V. El proceso de instalación es el siguiente:
Podemos instalar un tapajuntas sobre la plataforma del techo. El extremo inferior del canalón debe colocarse debajo de la plataforma del techo y sellarse con sellador. Se deben proporcionar orificios de drenaje en la parte inferior del canal, principalmente para la conexión a los tubos ascendentes de agua de lluvia.
Los canalones terminados se dimensionan previamente y se conectan in situ mediante conectores o soldadura. Se requiere sellador en la unión entre el canalón y la plataforma del techo.
Podemos instalar un tapajuntas sobre la plataforma del techo. El extremo inferior del canalón debe colocarse debajo de la plataforma del techo y sellarse con sellador. Se deben proporcionar orificios de drenaje en la parte inferior del canal, principalmente para la conexión a los tubos ascendentes de agua de lluvia.
Nuestro proceso de fabricación de canaletas con estructura de acero incluye el corte de acuerdo con las dimensiones del dibujo, el doblado, la pintura, la inspección del producto terminado, el embalaje y el envío. Los canalones con estructura de acero de Liweiyuan están diseñados e instalados para garantizar resistencia a la corrosión, drenaje suave y durabilidad, asegurando un drenaje eficiente.